Дом 948.9 м2 в поселке Жуковка XXI

Россия, Московская область, Одинцовский городской округ, деревня Жуковка, коттеджный посёлок Жуковка 21

738 375 000
  • $
Лот 108503
посёлок Раздоры
Площадь 948.9 м2
спален 3
Ванных комнат 4
Отделка Под чистовую/White box
Двухэтажный коттедж 948 кв.м в стиле Райт на ухоженном участке 0,5 Га в поселке с многоуровневой системой охраны - Жуковка 21.
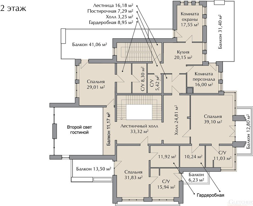
Планировка:
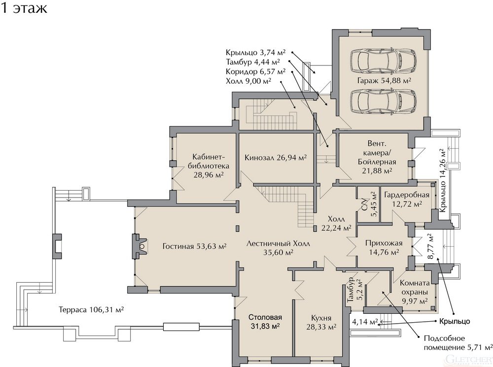
1 этаж: прихожая, гардеробная, комната охраны, с/у, бойлерная, гараж на 2 м/м, холл, двухсветная гостиная с выходом на просторную террасу, кухня, столовая, кабинет - библиотека, кинотеатр.
2 этаж: холл, балкон второго света, 3 спальни с балконами, ванными и гардеробными комнатами, блок для персонала (2 комнаты, кухня, с/у).
связаться с брокером +7 (495) 032-52-84
Похожие объекты в этом же поселке
246
Дом 1218.19 м2 # 003551
коттеджный посёлок Жуковка 21, деревня Жуковка, сельское поселение Барвихинское, Одинцовский район, Московская область
Посёлок: Жуковка XXI
Площадь: 1218.19 м²
Участок: 50 соток
Отделка: С отделкой без мебели
939 400 000
  • $
Дом 769.87 м2 # 044671
Россия, Московская область, Одинцовский городской округ, деревня Жуковка, коттеджный посёлок Жуковка 21
Посёлок: Жуковка XXI
Площадь: 769.87 м²
Участок: 50 соток
Отделка: С отделкой с мебелью
899 250 000
  • $
Дом 989.99 м2 # 020945
коттеджный посёлок Жуковка 21, деревня Жуковка, сельское поселение Барвихинское, Одинцовский район, Московская область
Посёлок: Жуковка XXI
Площадь: 989.99 м²
Участок: 50 соток
Отделка: С отделкой без мебели
948 750 000
  • $
Похожие объекты в других поселках
246
Дом 718 м2 # 204219
Россия, Московская область, Одинцовский городской округ, деревня Барвиха, территория НПИЗ Речное
Посёлок: Речной
Площадь: 718 м²
Участок: 17.5 соток
Отделка: С отделкой с мебелью
712 090 000
  • $
Дом 1091 м2 # 200845
Россия, Московская область, Одинцовский городской округ, посёлок Барвиха, территория Сады Майендорф
Посёлок: Сады Майендорф (Санаторий Барвиха)
Площадь: 1091 м²
Участок: 25 соток
Отделка: С отделкой с мебелью
697 848 200
  • $
Дом 922.24 м2 # 200301
Россия, Московская область, Одинцовский городской округ, деревня Рождественно, территория Барвиха-21
Посёлок: Барвиха XXI
Площадь: 922.24 м²
Участок: 34.29 соток
Отделка: Без отделки/Shell and core
690 000 000
  • $
Дом 670 м2 # 199997
Россия, Московская область, Одинцовский городской округ, деревня Раздоры, коттеджный посёлок Раздоры-2
Посёлок: Раздоры-2
Площадь: 670 м²
Участок: 33 соток
Отделка: С отделкой с мебелью
704 969 100
  • $
Дом 750 м2 # 198843
Россия, Московская область, Одинцовский городской округ, деревня Раздоры, коттеджный посёлок Раздоры-2
Посёлок: Раздоры-2
Площадь: 750 м²
Участок: 30.29 соток
Отделка: С отделкой с мебелью
740 573 600
  • $
Дом 900 м2 # 129549
Россия, Московская область, Одинцовский район, сельское поселение Барвихинское, деревня Рождественно, территория Барвиха-21
Посёлок: Барвиха XXI
Площадь: 900 м²
Участок: 42 соток
Отделка: С отделкой с мебелью
2 492 315 / мес
890 112 500
аренда
  • $
Дом 1200 м2 # 118721
Россия, Московская область, Одинцовский городской округ, деревня Шульгино, Полевая улица
Посёлок: Шульгино
Площадь: 1200 м²
Участок: 30 соток
Отделка: С отделкой с мебелью
2 492 315 / мес
712 090 000
аренда
  • $
Дом 1028.6 м2 # 115824
Россия, Московская область, Одинцовский городской округ, деревня Рождественно, территория Барвиха-21
Посёлок: Барвиха XXI
Площадь: 1028.6 м²
Участок: 33.84 соток
Отделка: Без отделки/Shell and core
690 000 000
  • $
Дом 935 м2 # 111267
Россия, Московская область, Одинцовский городской округ, село Ромашково
Посёлок: Ромашково
Площадь: 935 м²
Участок: 14 соток
Отделка: С отделкой с мебелью
1 780 225 / мес
605 276 500
аренда
  • $
Дом 750 м2 # 010388
Россия, Московская область, Одинцовский район, сельское поселение Барвихинское, деревня Рождественно, территория Барвиха-21
Посёлок: Барвиха XXI
Площадь: 750 м²
Участок: 30 соток
Отделка: С отделкой с мебелью
3 500 000 / мес
550 000 000
аренда
  • $
Дом 850 м2 # 198292
Московская область, Одинцовский городской округ, посёлок дачного хозяйства Жуковка, коттеджный посёлок Жуковка-2
Посёлок: Жуковка 2
Площадь: 850 м²
Участок: 32.34 соток
Отделка: Под чистовую/White box
787 474 530
  • $
Дом 1114 м2 # 035834
Россия, Московская область, Одинцовский район, сельское поселение Барвихинское, деревня Жуковка, территория Парк Вилл
Посёлок: ParkVille Жуковка
Площадь: 1114 м²
Участок: 25.31 соток
Отделка: С отделкой с мебелью
3 980 000 / мес
854 508 000
аренда
  • $