Дом 654.7 м2 в поселке Новь

Московская область, Одинцовский городской округ, деревня Барвиха, ДПК Новь, 1-я линия

345 000 000
  • $
Лот 206508
посёлок Раздоры
Площадь 654.7 м2
спален 6
Ванных комнат 3
Отделка С отделкой с мебелью
ЭКСКЛЮЗИВ!

Предлагается уютный дом 654,7 кв.м. на лесном участке 16,6 сотки в стародачном охраняемом поселке Новь.
Удобная транспортная доступность – всего 6 км от МКАД и 15 минут до Москва-Сити по платной трассе.
Великолепная инфраструктура района (школы, детские сады, торговые центры, фитнес-клубы и др.). В пешей доступности расположен лучшие парки на Рублевке – Раздолье, Малевича, Отражение.
Дом расположен на охраняемой территории, в окружении лесного массива с вековыми соснами и елями. На участке проведены ландшафтные работы, высажены кустарники, газон, вымощены дорожки, установлено освещение. Участок огорожен забором. К дому примыкает гараж на 2 м/м.
Интерьеры дома выдержаны в современном стиле. Теплые тона придают спокойствие, умиротворение и уют. В гостиной установлен дровяной камин, второй свет и панорамное остекление дают много света и простора. Кухня – столовая имеет выход на просторную террасу, что позволяет в летнее время приятно проводить время с семьей и друзьями. На первом этаже удобно расположены 2 комнаты, которые можно использовать как гостевые, либо для возрастных родственников. Также здесь расположена СПА-зона с купелью, сауной и хаммамом. В доме много кладовых и гардеробных. Второй этаж отведен под кабинет и спальни: 2 детские комнаты, гостевая спальня и санузел, кабинет, мастер-блок (спальня, санузел, гардеробная, терраса).
Дом меблирован, укомплектован всей необходимой техникой и полностью готов к проживанию. В отделке и строительстве использовались качественные натуральные материалы.

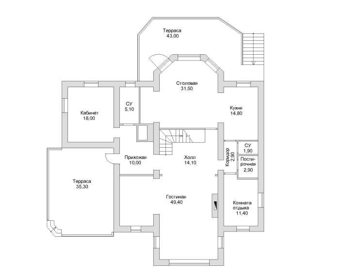
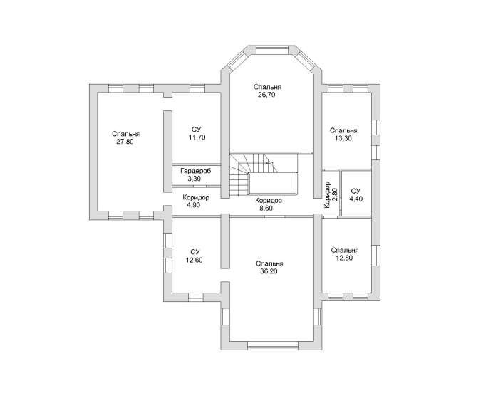
Планировка дома:
1 этаж: прихожая с гардеробом, холл, гостиная со вторым светом и камином, кухня-столовая с выходом на террасу, кладовые, серверная, гостевой с/у, гостевая спальня, тренажерный зал, СПА зона (купель, хаммам, сауна, душевая), гардеробная, постирочная, гараж на 2 автомобиля.
2 этаж: холл, просторная терраса, 2 детские спальни с гардеробными, гостевая спальня с гардеробной, с/у, детская игровая, кабинет, мастер-блок (спальня, санузел, гардеробная, терраса).
связаться с брокером +7 (495) 032-52-84
Похожие объекты в других поселках
256
Дом 500 м2 # 173524
Московская область, Одинцовский городской округ, деревня Шульгино
Посёлок: Шульгино
Площадь: 500 м²
Участок: 12 соток
Отделка: С отделкой с мебелью
360 000 000
  • $
Дом 500 м2 # 182729
Московская область, Одинцовский городской округ, деревня Шульгино
Посёлок: Шульгино
Площадь: 500 м²
Участок: 12 соток
Отделка: С отделкой без мебели
390 000 000
  • $
Дом 650 м2 # 153627
Россия, Московская область, Одинцовский район, сельское поселение Барвихинское, посёлок Барвиха
Посёлок: Барвиха
Площадь: 650 м²
Участок: 23 соток
Отделка: Без отделки/Shell and core
299 522 400
  • $
Дом 750 м2 # 028907
Россия, Московская область, Одинцовский городской округ, деревня Шульгино
Посёлок: Шульгино
Площадь: 750 м²
Участок: 51 соток
Отделка: С отделкой с мебелью
336 962 700
  • $
Дом 742.6 м2 # 197917
Россия, Московская область, Одинцовский городской округ, деревня Жуковка, коттеджный посёлок Жуковка Академическая, Академическая улица
Посёлок: Жуковка Академическая
Площадь: 742.6 м²
Участок: 32.16 соток
Отделка: С отделкой с мебелью
359 426 880
  • $
Дом 680 м2 # 177953
Россия, Московская область, Одинцовский городской округ, деревня Жуковка, коттеджный посёлок Жуковка Академическая, Академическая улица
Посёлок: Жуковка Академическая
Площадь: 680 м²
Участок: 28.3 соток
Отделка: С отделкой с мебелью
250 000 000
  • $
Дом 680 м2 # 163075
Россия, Московская область, Одинцовский район, сельское поселение Барвихинское, деревня Жуковка
Посёлок: Жуковка
Площадь: 680 м²
Участок: 30 соток
Отделка: С отделкой с мебелью
300 000 000
  • $
Дом 800 м2 # 144547
Россия, Московская область, Одинцовский городской округ, посёлок Барвиха
Посёлок: СП Барвиха
Площадь: 800 м²
Участок: 15 соток
Отделка: С отделкой с мебелью
420 000 000
  • $
Дом 700 м2 # 134258
Россия, Московская область, Одинцовский городской округ, деревня Жуковка, коттеджный посёлок Жуковка Академическая, Академическая улица
Посёлок: Жуковка Академическая
Площадь: 700 м²
Участок: 8 соток
Отделка: С отделкой с мебелью
1 872 015 / мес
299 522 400
аренда
  • $