Дом 1800 м2 в поселке Барвиха XXI

Россия, Московская область, Одинцовский район, сельское поселение Барвихинское, деревня Рождественно, территория Барвиха-21

2 400 000 000
  • $
Лот 165350
посёлок Раздоры
Площадь 1800 м2
спален 8
Ванных комнат 11
Отделка С отделкой с мебелью
Особняк площадью 1800 кв. м на приоритетном участке в 36 соток в охраняемом поселке Барвиха-21.

При строительстве и отделке использовались качественные дорогие материалы: полы — Coswick, плитка — Italon, Atlas Concorde; сантехника — Villeroy & Boch, Grohe, Gessi, Bossini, Timo; инсталляции — Tece; светильники — Arlight, Gauss, Fiume, Loft it, Центрсвет; высота потолков — 3.9–4.6 м; сауна — электрическая, каменка — Harvia. Мебель и техника — Furman, Mononova, Silver Home, Ditre Italia, Fifty Forms, Kuppersbusch, Liebherr, Asko. Установлены система «Умный дом» и приточно-вытяжная вентиляция. По периметру участка организовано видеонаблюдение.

В планировке предусмотрено: 8 спален, 11 ванных комнат, рабочая кухня, квартира для персонала, комната для водителя и охраны, винный погреб, SPA-зона с бассейном, сауной и хамамом, массажный кабинет, гараж на 4 машино-места.

Участок прилесной с возможностью аренды лесного массива. Ведутся ландшафтные работы, установлено освещение, вымощены дорожки, организована парковка на 3 машино-места.

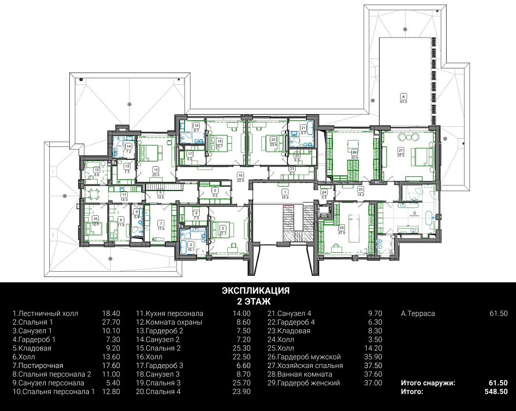
Планировка дома:
Цоколь: холл, винный погреб, техническое помещение бассейна, венткамера, серверная, кладовая, техническое помещение — котельная.
1 этаж: холл, гардеробная, кабинет с санузлом, гостевая спальня с санузлом и гардеробной, гостиная с камином, столовая, кухня, рабочая кухня, кладовая при кухне, еще одна кладовая, терраса с зоной барбекю, гостевой санузел, комната для водителя с санузлом, гардероб, гараж на 4 машино-места, санузел при гараже, котельная, SPA-зона (бассейн, сауна, хамам, душевые, санузел, тренажерный зал, массажный кабинет).
2 этаж: холл, мастер-блок (спальня, ванная комната, мужская и женская гардеробные, терраса), 4 спальни с санузлами и гардеробными, 2 кладовые, постирочная, блок персонала (кухня, гостиная, 2 спальни, санузел).
связаться с брокером +7 (495) 032-52-84
Похожие объекты в этом же поселке
255
Дом 1731.4 м2 # 172815
Россия, Московская область, Одинцовский район, сельское поселение Барвихинское, деревня Рождественно, территория Барвиха-21
Посёлок: Барвиха XXI
Площадь: 1731.4 м²
Участок: 36.4 соток
Отделка: С отделкой с мебелью
2 400 000 000
  • $
Похожие объекты в других поселках
255
Дом 1327 м2 # 198919
Россия, Московская область, Одинцовский городской округ, деревня Раздоры, коттеджный посёлок Раздоры-2
Посёлок: Раздоры-2
Площадь: 1327 м²
Участок: 23 соток
Отделка: С отделкой с мебелью
2 020 595 850
  • $
Дом 2100 м2 # 198286
Россия, Московская область, Одинцовский городской округ, посёлок Барвиха, территория Сады Майендорф
Посёлок: Сады Майендорф (Санаторий Барвиха)
Площадь: 2100 м²
Участок: 75 соток
Отделка: С отделкой с мебелью
2 211 218 100
  • $
Дом 1780 м2 # 157484
Московская область, Одинцовский городской округ, село Ромашково, коттеджный посёлок Ромашково-21
Посёлок: Ромашково XXI
Площадь: 1780 м²
Участок: 49 соток
Отделка: С отделкой с мебелью
2 668 711 500
  • $
Дом 1300 м2 # 135607
Московская область, Одинцовский городской округ, посёлок Барвиха, территория Сады Майендорф
Посёлок: Сады Майендорф (Санаторий Барвиха)
Площадь: 1300 м²
Участок: 50 соток
Отделка: С отделкой с мебелью
2 668 711 500
  • $
Дом 1500 м2 # 117950
Россия, Московская область, Одинцовский район, сельское поселение Барвихинское, деревня Раздоры
Посёлок: Раздоры
Площадь: 1500 м²
Участок: 47.12 соток
Отделка: С отделкой с мебелью
1 961 020 600
  • $
Дом 2100 м2 # 113428
Россия, Московская область, Одинцовский городской округ, деревня Барвиха, территория НПИЗ Речное
Посёлок: Речной
Площадь: 2100 м²
Участок: 83.3 соток
Отделка: С отделкой с мебелью
4 456 865 / мес
1 982 471 400
аренда
  • $
Дом 1600 м2 # 111560
Россия, Московская область, Одинцовский городской округ, посёлок Барвиха
Посёлок: Речной
Площадь: 1600 м²
Участок: 63 соток
Отделка: С отделкой с мебелью
2 668 711 500
  • $
Дом 1800 м2 # 111127
Россия, Московская область, Одинцовский городской округ, деревня Раздоры
Посёлок: Флоранс
Площадь: 1800 м²
Участок: 110 соток
Отделка: С отделкой без мебели
2 287 467 000
  • $
Дом 1300 м2 # 110938
Россия, Московская область, Одинцовский городской округ, посёлок Барвиха, территория Сады Майендорф
Посёлок: Сады Майендорф (Санаторий Барвиха)
Площадь: 1300 м²
Участок: 50 соток
Отделка: С отделкой с мебелью
1 906 222 500
  • $
Дом 2136 м2 # 198291
Московская область, Одинцовский городской округ, посёлок дачного хозяйства Жуковка, коттеджный посёлок Жуковка-2
Посёлок: Жуковка 2
Площадь: 2136 м²
Участок: 96.67 соток
Отделка: С отделкой с мебелью
3 119 805 500
  • $
Дом 1900 м2 # 179627
Россия, Московская область, Одинцовский район, сельское поселение Барвихинское, деревня Жуковка, территория Парк Вилл
Посёлок: ParkVille Жуковка
Площадь: 1900 м²
Участок: 51.3 соток
Отделка: С отделкой с мебелью
2 744 960 400
  • $
Дом 2000 м2 # 162497
Россия, Московская область, Одинцовский район, сельское поселение Барвихинское, деревня Жуковка, территория Парк Вилл
Посёлок: ParkVille Жуковка
Площадь: 2000 м²
Участок: 31.23 соток
Отделка: С отделкой с мебелью
2 317 569 800
  • $